Villa/Villino in vendita, Bordighera (Imperia)
Via dei Colli
- Su più livelli
- 650 mq
- 15 locali
- 13 camere
- 8 bagni
- € 2.650.000
Descrizione
Villa Paradiso – Bordighera
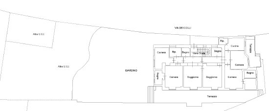
Affacciata direttamente sul mare cristallino di Bordighera, Villa Paradiso è una residenza esclusiva sviluppata su tre piani, concepita per abbracciare la luce, il paesaggio e la quiete della Riviera. L’intera proprietà è avvolta da un’aura di raffinata armonia, dove architettura e natura si fondono in un equilibrio impeccabile.
Sul fronte marino, un elegante porticato sospeso si estende da est a ovest, accompagnando lo sguardo lungo la linea dell’orizzonte e collegando la villa al rigoglioso giardino e all’ampio piazzale dotato di posti auto. Questo elemento architettonico, di grande fascino, crea una continuità visiva perfetta tra gli ambienti interni e il panorama esterno.
Al piano principale, un doppio salone luminoso si apre direttamente sul mare, offrendo scorci poetici in ogni momento della giornata. Le camere matrimoniali, i bagni e la cucina sono tutte incorniciate da una vista privilegiata: da una parte il blu profondo del mare, dall’altra il verde rigoglioso del giardino mediterraneo. Ogni ambiente è progettato per offrire comfort, luminosità e una sensazione avvolgente di eleganza naturale.
Il primo piano accoglie quattro deliziosi appartamenti mansardati, ognuno dotato di balconcini sospesi sul mare o di terrazze ampie e panoramiche. Le zone giorno, organizzate con salette dotate di angolo cottura o con cucine abitabili, offrono spazi funzionali e conviviali. Le aree mansardate, destinate alla zona notte, sono caratterizzate da luminose finestrelle e da ricercati dettagli in legno che donano calore e charme agli ambienti, creando atmosfere intime e accoglienti.
Pur essendo proposta in vendita nella sua interezza, Villa Paradiso dispone di due ingressi indipendenti che permettono di suddividere agevolmente la proprietà in due unità distinte: il piano terra da una parte e i piani superiori dall’altra. Questa caratteristica offre la preziosa possibilità di destinare gli appartamenti a reddito o, al contrario, di unificare la villa in un’unica grande dimora prestigiosa.
Villa Paradiso rappresenta un raro connubio di eleganza, comfort e posizione impareggiabile, ideale come residenza privata di grande rappresentanza oppure come investimento di pregio sulla Riviera Ligure.
Le informazioni contenute in questo annuncio hanno carattere puramente informativo e non costituiscono elemento contrattuale.
Per maggiori dettagli o per prenotare una visita a questa interessante proposta immobiliare, contattare William al 379 2860503 – Ufficio: 0184 990791.
Dettagli

Richiesta informazioni
Immobili simili non presenti
I nostri immobili
casamarket group casedamare srls
via Roma 95 Sanremo, Sanremo (IM)
0184.990791
3472628618
sanremo@gabetti.it
piazza Goito 8 Imperia
0183.767110
3932666666
imperia@gabetti.it
P.Iva: 10319530969
Seguici su
Privacy
INFORMATIVA SULLA PRIVACY.
Il presente documento, riguarda le politiche di riservatezza e descrive le modalità di gestione del trattamento dei dati personali dei visitatori e degli utenti del sito.
Il Decreto Legislativo n. 196 del 30 giugno 2003 (CODICE IN MATERIA DI PROTEZIONE DEI DATI PERSONALI di seguito denominato “Codice”) che ha sostituito la Legge n. 675 del 31 dicembre 1996, stabilisce le regole concernenti la raccolta dei dati personali ed in particolare:
a) le finalità e le modalità del trattamento cui sono destinati i da b) la natura obbligatoria o facoltativa del conferimento dei dati; c) le conseguenze di un eventuale rifiuto di conferire i dati; d) i soggetti o le categorie di soggetti ai quali i dati personali possono essere comunicati o che possono venirne a conoscenza in qualità di responsabili o incaricati, e l’ambito di diffusione dei dati medesimi; e) i diritti dei soggetti interessati; f) gli estremi identificativi del titolare e del responsabile Titolare e responsabile;
Finalita’ e modalita’ del trattamento dei dati: I dati raccolti tramite il portale, trattati in modo lecito e secondo principi di correttezza, saranno utilizzati, previo consenso dell’utente, al fine di ottenere i servizi previsti nel portale stesso. L’invio di messaggi di posta elettronica agli indirizzi eventualmente presenti nel portale, comporta l’acquisizione dell’indirizzo del mittente. Tale indirizzo, unitamente agli altri dati personali eventualmente raccolti, è necessario per poter rispondere alle richieste inviate e per poter fornire i servizi espressamente richiesti. I dati sono trattati in formato cartaceo e/o elettronico, mediante l’ausilio di procedure automatizzate, ed è svolto direttamente dall’organizzazione del titolare o da soggetti esterni a tale organizzazione, in qualità di Responsabili e/o Incaricati del trattamento, nonché da Società di servizi, in qualità di Responsabili e/o Incaricati del trattamento. Sono previste opportune misure di sicurezza per evitare l’uso non corretto o illecito dei dati, l’accesso da parte di soggetti non abilitati e la perdita dei dati stessi. Nessun dato raccolto tramite il portale è soggetto a diffusione differente da quella prevista dal servizio richiesto.
Natura obbligatoria o facoltativa del conferimento dei dati: L’utente del sito ha la facoltà di conferire o meno i propri dati personali, per richiedere i servizi o l’invio di materiale informativo da parte della Società.
Conseguenze di un eventuale rifiuto di conferire i dati: Il mancato consenso al trattamento dei dati, comporta l’impossibilità di ottenere dalla Società il servizio richiesto.
Soggetti o categorie di soggetti ai quali i dati possono essere comunicati: I dati personali raccolti tramite il sito, sono comunicati a soggetti terzi solo nel caso in cui il servizio offerto richieda tale comunicazione. I dati possono essere comunicati ad organismi ed autorità in base a specifiche disposizioni di legge.
Diritti dei soggetti interessati: Il Codice conferisce all’interessato l’esercizio di specifici diritti, tra cui quelli di ottenere dal Titolare la conferma dell’esistenza o meno dei propri dati personali e la loro messa a disposizione in forma intelligibile; di avere conoscenza dell’origine dei dati, nonché della logica e delle finalità su cui si basa il trattamento; di ottenere l’indicazione degli estremi identificativi del Titolare, dei Responsabili, dei soggetti e delle categorie di soggetti ai quali i dati personali possono essere comunicati; di ottenere la cancellazione, la trasformazione in forma anonima o il blocco dei dati trattati in violazione della legge, nonché l’aggiornamento, la rettificazione o, se vi è interesse, l’integrazione dei dati; di opporsi, per motivi legittimi, al trattamento stesso. Si precisa che la cancellazione e il blocco riguardano i dati trattati in violazione di legge; per l’integrazione occorre vantare un interesse specifico. Il diritto di opposizione può sempre essere esercitato nei riguardi del materiale commerciale e pubblicitario, della vendita diretta e delle ricerche di mercato; negli altri casi l’opposizione presume un motivo legittimo. I diritti di cui al presente paragrafo possono essere esercitati presentando istanza scritta al Responsabile del trattamento.
Consenso: Il consenso al trattamento dei dati, nel rispetto del Codice e della presente Privacy Policy, deve essere espresso, da parte del soggetto interessato, tramite l’apposito form e cliccando sulla prevista casella di autorizzazione.
Titolare e responsabile del trattamento dei dati personali eventualmente conferiti tramite il portale è Borla Domenico "casamarket group casedamare srls" – P.iva: 10319530969
Cookies Policy
Cookies policy...
Con il presente documento, ai sensi degli artt. 13 e 122 del D. Lgs. 196/2003 ("codice privacy"), nonché in base a quanto previsto dal Provvedimento generale del Garante privacy dell'8 maggio 2014, la presente pagina fornisce agli utenti del presente sito alcune informazioni relative ai cookie utilizzati.
Cosa sono i cookie
Quasi la totalità dei siti utilizza i cookies per migliorare la navigazione e renderla più veloce ed immediata. Un cookie è un piccolo file di testo, memorizzato nel computer da siti web durante la navigazione, utile a salvare le preferenze e a migliorare le prestazioni dei siti web. In questo modo si ottimizza l'esperienza di navigazione da parte dell'utente. I cookie vengono spesso erroneamente ritenuti veri e propri programmi e ciò genera errate convinzioni. In realtà essi sono semplici blocchi di dati, incapaci, da soli, di compiere qualsiasi azione sul computer. In particolare non possono essere né spyware, né virus.
Nel corso della navigazione su un sito, l’utente può ricevere sul suo terminale anche cookie di siti o di web server diversi (c.d. cookie di “terze parti”); ciò accade perché sul sito web visitato possono essere presenti elementi come, ad esempio, immagini, mappe, suoni, specifici link a pagine web di altri domini che risiedono su server diversi da quello sul quale si trova la pagina richiesta.
I cookie sono usati per eseguire autenticazioni informatiche, monitoraggio di sessioni e memorizzazione di informazioni specifiche riguardanti gli utenti che accedono al server e di norma sono presenti nel browser di ciascun utente in numero molto elevato.
Esistono diversi tipi di cookie:
a. Cookie tecnici.
I cookie tecnici sono quelli utilizzati al solo fine di "effettuare la trasmissione di una comunicazione su una rete di comunicazione elettronica, o nella misura strettamente necessaria al fornitore di un servizio della società dell'informazione esplicitamente richiesto dall'abbonato o dall'utente a erogare tale servizio" (cfr. art. 122, comma 1, D.lgs n. 196/2003, c.d. Codice privacy).
Essi non vengono utilizzati per scopi ulteriori, sono normalmente installati direttamente dal titolare o gestore del sito web, non richiedono il preventivo consenso degli utenti e possono essere suddivisi in:
- cookie di navigazione o di sessione, che garantiscono la normale navigazione e fruizione del sito web (permettendo, ad esempio, di realizzare un acquisto o autenticarsi per accedere ad aree riservate);
- cookie analytics, assimilati ai cookie tecnici laddove utilizzati direttamente dal gestore del sito per raccogliere informazioni, in forma aggregata, sul numero degli utenti e su come questi visitano il sito stesso;
- cookie di funzionalità, che permettono all'utente la navigazione in funzione di una serie di criteri selezionati (ad esempio, la lingua, i prodotti selezionati per l'acquisto) al fine di migliorare il servizio reso allo stesso.
b. Cookie di profilazione.
I cookie di profilazione sono volti a creare profili relativi all'utente e vengono utilizzati al fine di inviare messaggi pubblicitari in linea con le preferenze manifestate dallo stesso nell'ambito della navigazione in rete. La normativa prevede che l'utente sia adeguatamente informato sull'uso degli stessi al fine di esprimere il proprio consenso.
c. Cookie di terze parti.
I cookie di terze parti sono installati da un sito diverso tramite il sito che si sta visitando. Questi cookie possono essere inviati al browser dell'utente da società terze direttamente dai loro siti per finalità proprie anche, eventualmente, di profilazione. Gli utenti devono essere previamente informati in merito alle modalità di funzionamento di tali cookie e di quelle necessarie a prestare il consenso all'utilizzo degli stessi.
Tipologie di cookie utilizzate dal presente sito
Cookie del Titolare
Questo sito internet utilizza solo cookies tecnici ed analitici, che possono essere utilizzati senza chiedere il consenso dell'utente, poiché sono strettamente necessari per la fornitura del servizio.
Più precisamente il sito utilizza:
- cookie tecnici necessari alla navigazione da parte dell'utente, cookie di questo tipo sono necessari per il corretto funzionamento di alcune aree del sito. In assenza di tali cookie, il sito o alcune porzioni di esso potrebbero non funzionare correttamente. Pertanto, vengono sempre utilizzati, indipendentemente dalle preferenze dall’utente. I cookie di questa categoria vengono sempre inviati dal nostro dominio:
- Nome del cookie: ses1431236661789 - Durata del Cookie : al termine della sessione - il cookie tecnico che, fino alla sua scadenza, non mostra il banner con l’informativa breve all’utente che ha già visitato il sito e accettato il cookie:
- Nome del cookie: _ac - Durata del Cookie : 1 anno
Cookie di terze parti
Attraverso il presente sito sono installati alcuni cookie di terze parti, anche profilanti, che si attivano chiudendo il banner intitolato "Uso dei cookie" o cliccando sui link "Autorizzo i cookie".
Si riportano nel dettaglio gli elementi di terze parti, nonché i link attraverso i quali l'utente può ricevere maggiori informazioni e richiedere la disattivazione dei cookie.
Pulsante Mi Piace e widget sociali di Facebook (Facebook, Inc.)
Il pulsante "Mi Piace" e i widget sociali di Facebook sono servizi di interazione con il social network Facebook, forniti da Facebook, Inc. Dati personali raccolti: Cookie e Dati di utilizzo. Luogo del trattamento : USA. Informativa reperibile al seguente link https://www.facebook.com/privacy/explanation
Visualizzazione di contenuti da piattaforme esterne
Il presente sito potrebbe riportare nelle proprie pagine dei contenuti ospitati su piattaforme esterne ed interagire con essi. Nel caso in cui sia installato un servizio di questo tipo, è possibile che, anche nel caso gli utenti non utilizzino il servizio, lo stesso raccolga dati di traffico relativi alle pagine in cui è installato.
- Widget Video Youtube (Google Inc.)
Youtube è un servizio di visualizzazione di contenuti video gestito da Google Inc. che permette a questo spazio online di integrare tali contenuti all’interno delle proprie pagine. Dati personali raccolti: Cookie e Dati di utilizzo. Luogo del trattamento : USA
Informativa reperibile al seguente link http://www.google.it/intl/it/policies/privacy/
- Widget Vimeo
Vimeo è un servizio di visualizzazione di contenuti video che permette a questo spazio online di integrare tali contenuti all’interno delle proprie pagine. Dati personali raccolti: Cookie e Dati di utilizzo. Luogo del trattamento : USA
Informative reperibili ai seguenti link https://vimeo.com/privacy e https://vimeo.com/cookie_policy
- Widget Google Maps (Google Inc.)
Google Maps è un servizio di visualizzazione di mappe gestito da Google Inc. che permette a questo spazio online di integrare tali contenuti all’interno delle proprie pagine. Dati personali raccolti: Cookie e Dati di utilizzo. Luogo del trattamento : USA – Privacy Policy
Informativa reperibile al seguente link http://www.google.it/intl/it/policies/privacy/
Modalità del trattamento
Il trattamento viene effettuato con strumenti automatizzati dal Titolare. Non viene effettuata alcuna diffusione o comunicazione.
Conferimento dei dati
Fatta eccezione per i cookie tecnici strettamente necessari alla normale navigazione, il conferimento dei dati è rimesso alla volontà dell'interessato che decida di navigare sul sito dopo aver preso visione dell'informativa breve contenuta nell'apposito banner e di usufruire dei servizi che comportano l'installazione di cookie.
L'interessato può quindi evitare l'installazione dei cookie mantenendo il banner (astenendosi quindi dal chiuderlo cliccando sul tasto "ok"), nonché attraverso le apposite funzioni disponibili sul proprio browser.
Disabilitazione dei cookie
Fermo restando quanto sopra indicato in ordine ai cookie strettamente necessari alla navigazione, l'utente può eliminare gli altri cookie attraverso la funzionalità a tal fine messa a disposizione dal Titolare tramite la presente informativa oppure direttamente tramite il proprio browser.
Ciascun browser presenta procedure diverse per la gestione delle impostazioni. L'utente può ottenere istruzioni specifiche attraverso i link sottostanti.
Microsoft Windows Internet Explorer
La disattivazione dei cookie di terze parti è inoltre possibile attraverso le modalità rese disponibili direttamente dalla società terza titolare per detto trattamento, come indicato ai link riportati nel precedente paragrafo "cookie di terze parti"
Per avere informazioni sui cookie archiviati sul proprio terminale e disattivarli singolarmente si rinvia ai link: http://www.youronlinechoices.com/it/le-tue-scelte; http://www.aboutcookies.org/
Diritti dell'interessato
L'interessato potrà far valere in ogni momento, rivolgendosi al titolare del trattamento tramite l'invio di una mail all'indirizzo sanremo@gabetti.it, i diritti di cui all'art. 7 del D.Lgs. 30 giugno 2003 n. 196, che di seguito si riporta testualmente.
Art. 7 D. Lgs. 196/2003
- L'interessato ha diritto di ottenere la conferma dell'esistenza o meno di dati personali che lo riguardano, anche se non ancora registrati, e la loro comunicazione in forma intelligibile.
- L'interessato ha diritto di ottenere l'indicazione:
- a) dell'origine dei dati personali;
- b) delle finalità e modalità del trattamento;
- c) della logica applicata in caso di trattamento effettuato con l'ausilio di strumenti elettronici;
- d) degli estremi identificativi del titolare, dei responsabili e del rappresentante designato ai sensi dell'articolo 5, comma 2;
- e) dei soggetti o delle categorie di soggetti ai quali i dati personali possono essere comunicati o che possono venirne a conoscenza in qualità di rappresentante designato nel territorio dello Stato, di responsabili o incaricati.
- L'interessato ha diritto di ottenere:
- a) l'aggiornamento, la rettificazione ovvero, quando vi ha interesse, l'integrazione dei dati;
- b) la cancellazione, la trasformazione in forma anonima o il blocco dei dati trattati in violazione di legge, compresi quelli di cui non è necessaria la conservazione in relazione agli scopi per i quali i dati sono stati raccolti o successivamente trattati;
- c) l'attestazione che le operazioni di cui alle lettere a) e b) sono state portate a conoscenza, anche per quanto riguarda il loro contenuto, di coloro ai quali i dati sono stati comunicati o diffusi, eccettuato il caso in cui tale adempimento si rivela impossibile o comporta un impiego di mezzi manifestamente sproporzionato rispetto al diritto tutelato.
- L'interessato ha diritto di opporsi, in tutto o in parte:
- a) per motivi legittimi al trattamento dei dati personali che lo riguardano, ancorché pertinenti allo scopo della raccolta;
- b) al trattamento di dati personali che lo riguardano a fini di invio di materiale pubblicitario o di vendita diretta o per il compimento di ricerche di mercato o di comunicazione commerciale.
Titolare del trattamento
Titolare e responsabile del trattamento dei dati personali eventualmente conferiti tramite il presente sito è Borla Domenico casamarket group casedamare srls via Roma 95 Sanremo, Sanremo (IM) – P.iva: 10319530969
Ricerca Immobili
cerca per codice
Contattaci
Chiamaci Subito
via Roma 95 Sanremo, Sanremo (IM)
0184.990791 - Scansiona per telefonarepiazza Goito 8 Imperia
0183.767110 - Scansiona per telefonare
Utilizziamo i cookie (anche di terze parti) per assicurarti la migliore esperienza nel nostro sito. Per saperne di più, conoscere i cookie utilizzati dal sito ed eventualmente disabilitarli, accedi alla Cookie Policy.
Se prosegui nella navigazione di questo sito acconsenti all’utilizzo dei cookie.. Continua.


